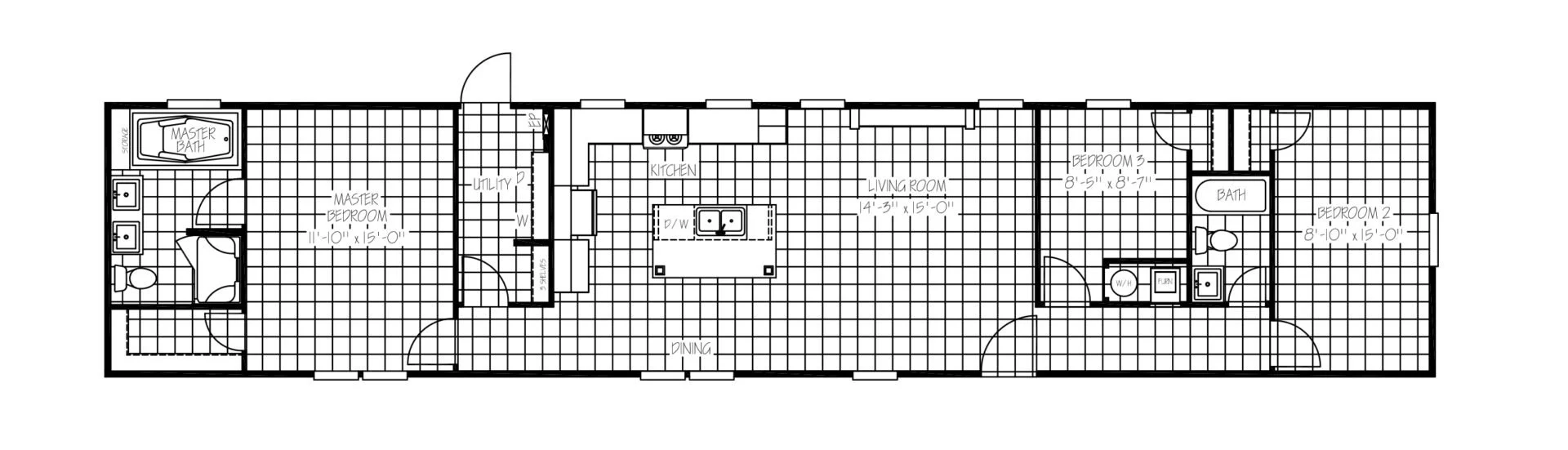
Pinehurst 3/2

Every home we carry is hand-picked for quality, comfort, and real Texas value. Whether you’re looking for a cozy starter home or your forever place to retire, our manufactured and modular homes are built strong, priced fairly, and move-in ready fast, fully set up in 30 days or less.

Explore the best of South Texas manufactured homes, without the stress. One stop. One price. One honest handshake.

Schedule a Tour
Virtual 3d Tour
Floor plan of a narrow, rectangular singlewide modular house with three bedrooms, two bathrooms, a kitchen, living room, dining area, and utility room.